KVARNER IMOBILIJE d.o.o.

Slične nekretnine

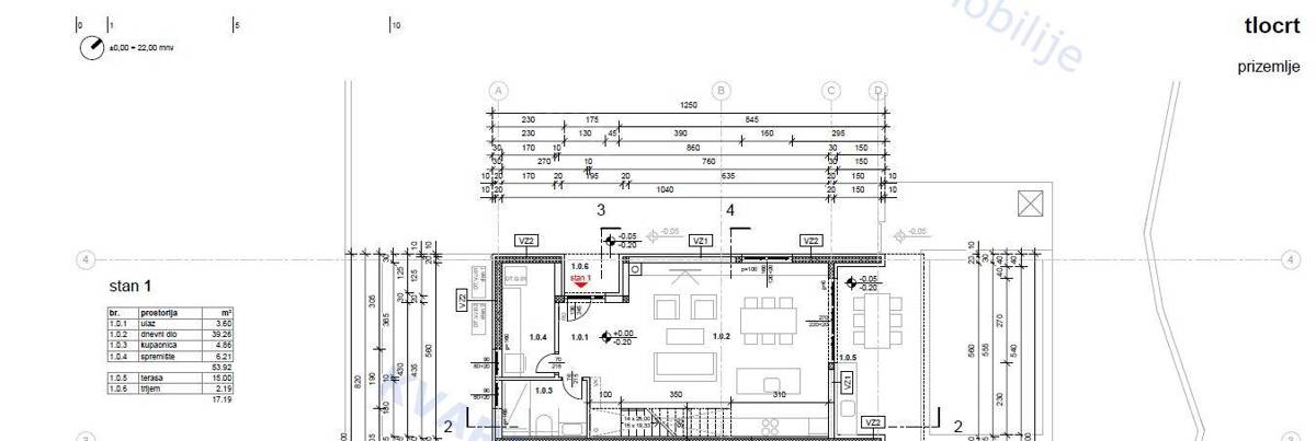
Malinska - nova dvojna kuća s bazenom, 150 m od mora

MALINSKA , KRK

820.000 €

Opis nekretnine

Otok Krk, Malinska - ekskluzivna i mirna lokacija, samo 150 m od mora! U ponudi agencije Kvarner imobilije d.o.o. nalazi se nova dvojna kuća površine 140 m² s bazenom i okućnicom od 150 m², idealna za odmor, stanovanje ili turistički najam. Kuća se sastoji od prizemlja u kojem se nalaze prostrani dnevni boravak s kuhinjom i blagovaonicom, kupaonica, spremište te terasa od 15 m² s bazenom i sunčalištem, savršena za uživanje tijekom cijele godine. Unutarnje stepenice vode na kat gdje su smještene tri komforne spavaće sobe, dvije moderne kupaonice, garderoba, hodnik i balkon. Nekretnina je kvalitetne gradnje i opremljena modernim sustavima poput klimatizacije i podnog grijanja u cijelom objektu, što osigurava visoku razinu udobnosti. Na uređenoj okućnici osigurana su i dva parkirna mjesta. Planirano useljenje je u svibnju 2026. godine. Nekretnina se nalazi u sustavu PDV-a, što znači da kupac ne plaća porez na promet nekretnina. Ova atraktivna nekretnina na otoku Krku u Malinskoj predstavlja izvrsnu priliku za investiciju ili luksuzan život u neposrednoj blizini mora. Za dodatne informacije ili dogovor oko razgledavanja nekretnine, slobodno nas kontaktirajte na broj +385919065207 ili nas posjetite u našoj poslovnici u Njivicama, Cvjetni trg 6. Kvarner imobilije d.o.o. vodeća je agencija za posredovanje na otoku Krku. Naše znanje i 30.godišnje iskustvo Vaš su kapital! Kvarner imobilije d.o.o. pomoći će vam prilikom prijenosa vlasništva nekretnine i komunalnih priključaka. Pratite nas na Facebooku i Instagramu: kvarner_imobilije_croatia

Info

Površina zemljišta: 150 m2
Površina objekta: 140 m2
Parking: 1
Broj soba: 4
Kupaonice: 3

Lokacija